Moradia individual T4
Balazar Póvoa de Varzim
495.000€
Imagens
Vídeo
Compra
Ref: 240-M-25998
Estado: Como novo
300.00 m2
250.00 m2
900.00 m2
4
2
4
Descrição

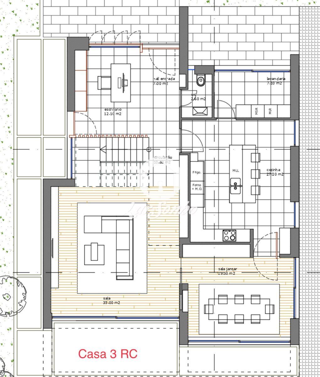
Moradia individual de luxo, com piscina, aquecimento por piso radiante, sistema VMC (ventilação mecânica controlada), localizada na freguesia de Arcos, em Vila do Conde, apresenta-se como uma oportunidade única no mercado imobiliário. Com uma área bruta de 300m2, distribuída por dois pisos, esta propriedade conta com 4 quartos, sendo 3 suítes, mais um wc serviço no rés-do-chão, proporcionando todo o conforto e privacidade que uma família moderna procura.

Com término de construção no inicio de 2027, esta moradia encontra-se em estado impecável, como nova, e destaca-se pela sua luminosidade e amplitude de espaços. A cozinha totalmente equipada e a sala com 54m2 de área, revestida a cerâmica, são apenas alguns dos pontos altos deste imóvel.

Com uma área de terreno de 900m2, esta propriedade oferece ainda um jardim envolvente bem cuidado e uma garagem fechada para dois carros, com portão automático. A sua classe energética A garante uma eficiência energética acima da média, contribuindo para a sustentabilidade e poupança a longo prazo.

Inserida numa zona residencial tranquila, com vistas desafogadas para um pinhal, esta moradia beneficia de uma localização privilegiada, estando próxima de supermercados, escolas, infantários e com fácil acesso a transportes públicos. Esta é uma oportunidade única no mercado imobiliário atual.

Não perca a oportunidade de adquirir esta moradia de sonho, que alia conforto, modernidade e qualidade de vida num único espaço. Contacte-nos para mais informações e agende já a sua visita!

Mais detalhes

  • Nº Pisos: 2
  • Area total: 900
  • Nº Frentes: 4
  • Orientação solar: 1
    • Norte 1
    • Sul 1
    • Nascente 1
    • Poente 1
  • Estado:
    • Bem Conservado 1
  • Visibilidade:
    • Boa 1
  • Viabilidade Construção:
    • Moradias 1
  • Piso:
    • R/C 1
    • 1
  • Garagem fechada:
    • Exterior 1
  • Nº de carros: 2
  • Portão de garagem:
    • Automático 1
  • Quartos: 4
    • Com WC (Suite) 3
    • Pavimento soalho flutuante
  • Salas: 54,00
    • Área 54,00
    • Pavimento ceramica
  • Cozinha:
    • Área 27,00
  • WC´s: 4
    • Privados 3
    • Serviço 1
  • Varandas: 1
    • 1
  • Roupeiros: 4
  • Acessos:
    • Transportes públicos 1
  • Localização:
    • Periferia 1
  • Serviços:
    • Supermercados 1
    • Escolas 1
    • Infantário 1
  • Vistas:
    • Pinhal 1
  • Zona envolvente:
    • Residencial 1
Lardesonho Vila do Conde - Póvoa de Varzim - Famalicão
Sonhar - Mediação Imobiliária, Lda
Vila do Conde

+351 252 600 790
Chamada para a rede fixa nacional
geral@lardesonho.pt
AMI:



Nome*
Email*
Telefone*
Ver Simulador

Simulador de Crédito

Prestação: {{ calcPayment }} / mês
Aviso: Estes dados são somente representativos.
Total do Empréstimo: {{ textPrice}}
Valor de Entrada {{ downPayment }}
Duração {{ textPrazo }}
TAEG {{ textSpread }}